Images

Videos

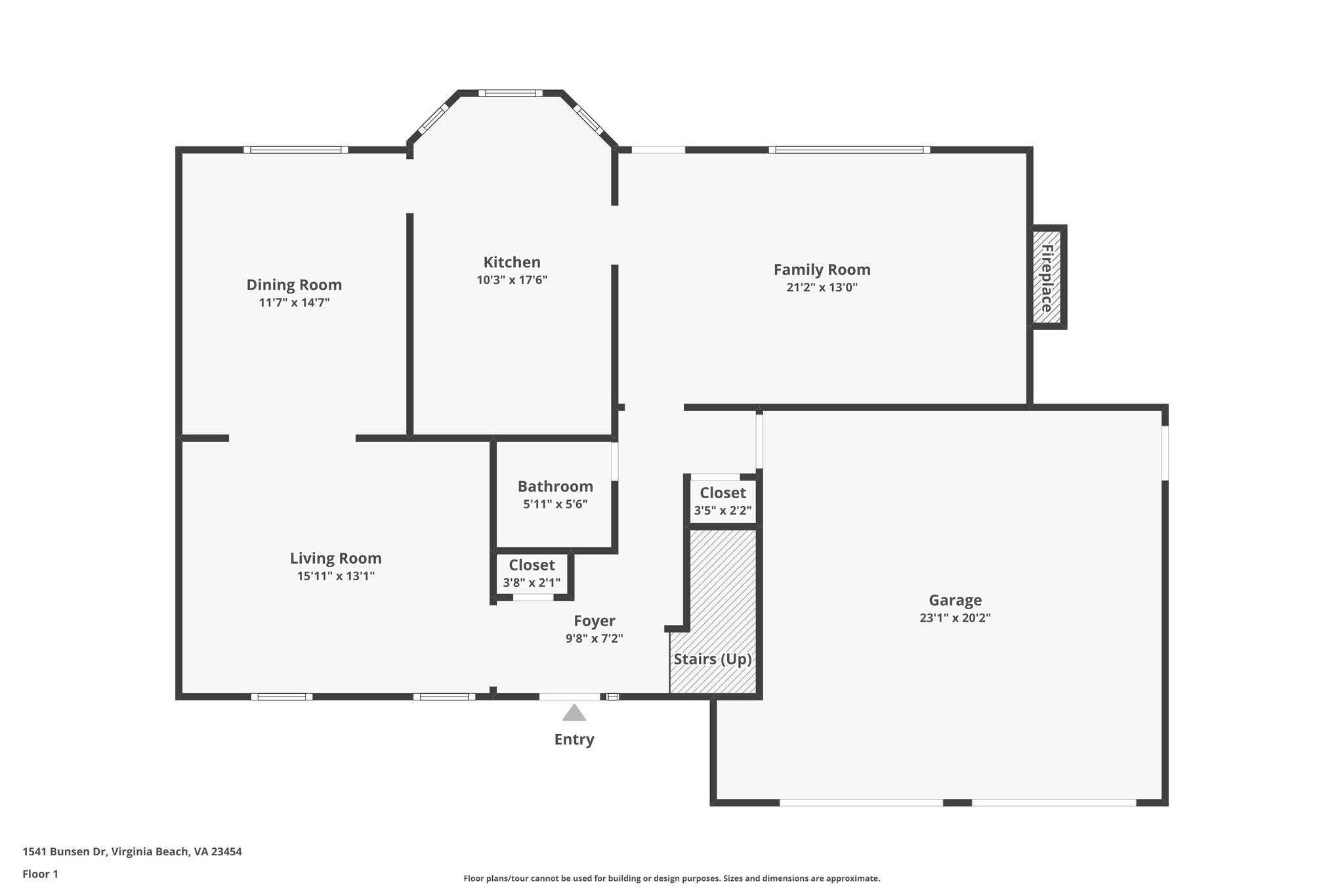
Floor Plans

Contact

Feel free to contact us for more details!

Kelly Westling

Iron Valley Real Estate Hampton Roads

+1757-362-2932

kwestling757@gmail.com